Транспортер СКИП 200 в Айтеке-Би

Подъемник СКИП 200
Подъемник СКИП 200
Чертеж транспортера СКИП 200
Транспортер СКИП 200 чертеж
Скиповый подъемник 200
Скиповый подъемник 200
Скиповые подъемники 200
Скиповые подъемники 200
Подъемник сыпучих грузов СКИП 200
Подъемник для сыпучих грузов
Производство скиповых подъемников 200
Производство скиповых подъемников 200
Изготовление скиповых подъемников 200
Изготовление скиповых подъемников 200
Чертеж скипового подъемника СКИП 200
Скиповый подъемник СКИП 200 чертеж
Чертеж подъемника для сыпучих грузов СКИП 200
Подъемник для сыпучих грузов СКИП 200 чертеж
Скиповый подъемник СКИП 200 схема установки
Схема установки скипового подъемника СКИП 200
Подъемник СКИП 200
Чертеж транспортера СКИП 200
Скиповый подъемник 200
Скиповые подъемники 200
Подъемник сыпучих грузов СКИП 200
Производство скиповых подъемников 200
Изготовление скиповых подъемников 200
Чертеж скипового подъемника СКИП 200
Чертеж подъемника для сыпучих грузов СКИП 200
Скиповый подъемник СКИП 200 схема установки
Цена
5 040 300 ₸
От 5 040 300 ₸ с доставкой до г.
Логотип WhatsApp Связаться
по WhatsApp
Транспортер СКИП 200 применяется для перемещения угля в вертикальном и круто наклонном положении, с места хранения угля в бункер водогрейного котла.

Технические характеристики

МаркаТранспортер СКИП 200
ТипСкиповый подъемник
Грузоподъемность200 кг
Емкость ковша0.15 м³
Скорость перемещения ковша0.16 м/с
Высота подъема груза15 м
Угол наклона70/75/90 °
Средняя плотность материала1300 кг/м³
Рабочая температураот -45 до +60 °С

Транспортер СКИП 200 в Айтеке-Би

Транспортер СКИП 200 используется для подъема насыпных грузов в наклонном и вертикальном направлениях в ковше (скипе). Транспортер СКИП 200 изготовлен в климатическом исполнении УХЛ1 по ГОСТ 15150.

Транспортер СКИП 200 оснащен:

  • грузоподъемным механизмом - основанием, направляющей, ковшом и ограждениями;
  • приводом;
  • элементами управления - щитом управления, постом кнопочным, концевыми выключателями (по согласованию с заказчиком).

Конструкцией подъемников должно обеспечиваться удобство обслуживания, регулирования узлов, а так же проведение ремонтных работ.

Комплект поставки СКИП 200

В комплект поставки транспортера СКИП 200 входит:

  • основание;
  • направляющая;
  • ограждения (левое и правое);
  • ковш (скип);
  • привод;
  • трос (канат);
  • элементы управления - щит управления, пост кнопочный, концевые выключатели (по согласованию с заказчиком);
  • опорно-каркасные элементы (по согласованию с заказчиком);
  • вспомогательные приспособления и инструменты в соответствии с ведомостью ЗИП.

Поставка транспортера СКИП 200 производится в разобранном виде.

СКИП 200 транспортируют транспортом всех видов в соответствии с правилами перевозки грузов, действующими на транспорте данного вида.

Устройство транспортера СКИП 200

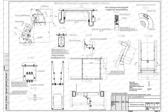
Транспортер СКИП 200 представляет собой устройство, собранное последовательно основание – опорной рамы предназначено для передачи нагрузки от веса подъемника и поднимаемого груза на опорную поверхность, направляющей – рамы с полозьями для движения в них ковша (скипа), скипа – ковша для загрузки в него и подъема в нем сыпучего материала, ограждений для ограничения доступа к движущимся элементам подъемника, привода – силового агрегата с тормозом осуществляющего перемещение ковша по направляющей с помощью канатной тяги, в крайних положениях ковша устанавливаются концевые выключатели для ограничения перемещения ковша и автоматизации приема крайних положений в ходе рабочего цикла.

Монтаж транспортера СКИП 200

Монтаж, эксплуатация и техническое обслуживание подъемника осуществляется в соответствии с "Техническим описанием, инструкцией по монтажу, эксплуатации и обслуживанию" предприятия-изготовителя, настоящими техническими условиями, а также "Инструкцией для персонала предприятия".

Наша организация осуществляет проектирование транспортеров в соответствии с техническим заданием Заказчика.

Купить транспортер СКИП 200 в Айтеке-Би

Для того, что бы купить транспортер СКИП 200 в Айтеке-Би вы можете оформить заявку в отделе сбыта по телефону +7 (7172) 69-59-73, либо оформить заявку он-лайн. Инженеры-консультанты рассчитают стоимость доставки до вашего региона и населенного пункта. Транспортирование скиповых подъемников может осуществляться транспортными компаниями, автомобильным транспортом, железнодорожным и речным видами транспорта.

Дополнительно потребуется

Бункер для топлива
Цена 4 897 200 тг.
Бункер для шлака
Цена 4 897 200 тг.
ВДП 15 дробилка
Цена 7 218 600 тг.
ДО-1М дробилка
Цена по запросу

Сертификаты товара

Сертификат на скиповые подъемники
Сертификат на скиповые подъемники

Опросные листы

Все опросные листы
Опросный лист на скиповый подъемник
Заполнить опрос

Собственное производство

Котельный завод производит
  • Паровые котлы от 300 кг до 2.5 тонны пара в час
  • Промышленные водогрейные котлы от 150 КВт до 4 МВт на всех видах топлива
  • Механические топки ТШПМ, шурующая планка и ТЛПХ, ленточное полотно прямого хода
  • Циклоны для очистки воздуха и дымовых газов для производств и промышленных отраслей
  • Транспортеры и системы топливоподачи и шлакоудаления
Подробнее о производстве
Собственное производство
Смотреть видео
с производства