Пеллетный котел 500 кВт в Айтеке-Би

Котел пеллетный 500 кВт
Пеллетный котел 500 кВт
Котел 500 кВт на пеллетах
Котел на пеллетах 500 кВт
Водогрейный котел 500 кВт на пеллетах
Водогрейный котел на пеллетах 500 кВт
Котел на пеллетах 500 кВт автоматический
Автоматический котел на пеллетах 500 кВт
Изготовление автоматического пеллетного котла 500 кВт
Изготовление автоматических пеллетных котлов 500 кВт
Производство автоматического пеллетного котла 500 кВт
Производство автоматических пеллетных котлов 500 кВт
Пеллетный котел 500 кВт чертеж
Чертеж пеллетного котла 500 кВт
Котел пеллетный 500 кВт
Котел 500 кВт на пеллетах
Водогрейный котел 500 кВт на пеллетах
Котел на пеллетах 500 кВт автоматический
Изготовление автоматического пеллетного котла 500 кВт
Производство автоматического пеллетного котла 500 кВт
Пеллетный котел 500 кВт чертеж
Цена
8 105 700 ₸
От 8 105 700 ₸ с доставкой до г.
Логотип WhatsApp Связаться
по WhatsApp
  • Автоматизированная работа котла
  • Работа на всех видах пеллет
  • Автоматизированная регулируемая подача топлива и требуемых параметров теплоносителя
  • Встроенная система безопасности от воспламенения топлива

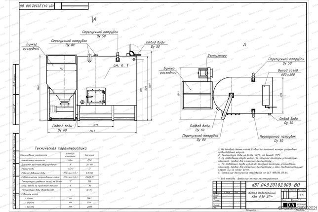
Технические характеристики

МаркаКотел КВа ДП (пеллетты)
ВидВодогрейный
Тип отопительного котлаТвердотопливный
БрендHEATEXPERT
ТипКотел КВа Д
Вид топкиРетортная, Автоматическая
Максимальная тепловая мощность0.5 МВт
Максимальная тепловая мощность500 кВт
Максимальная тепловая мощность0.43 Гкал
Диапазон регулирования мощности30-100 %
Диапазон регулирования мощности150-500 кВт
ТопливоТвердое, Пеллеты
Низшая теплота сгорания проектного топлива4900 кКал/кг
Влажность топлива20 %
Фракционный состав топлива6-10 мм
КПД котла на ПЕЛЛЕТАХ, не менее80 %
Расход ПЕЛЛЕТ среднечасовой за отопительный сезон65 кг/ч
Расход ПЕЛЛЕТ при максимальной нагрузке котла113 кг/ч
Расход условного топлива79 кг/ч
Минимальная температура воды на входе в котел55 °С
Максимальная температура воды на выходе из котла115 °С
Срок автономной работы при минимальной нагрузке до1 суток
Срок автономной работы в среднем за отопительный сезон8 часов
Срок автономной работы при максимальной нагрузке котла5 часов
Давление воды, не более0.15-0.3 (1.5-3) МПа (кгс/см²)
Номинальный расход теплоносителя18 м³/ч
Расход теплоносителя через котел min-max11-19 м³/ч
Гидравлическое сопротивление при номинальном расходене более 0.07 (0.7) МПа (кгс/см²)
Аэродинамическое сопротивление130 (1.3) Па (мм. вод. ст.)
Разряжение в топочной камере20-40 (2-4) Па (мм. вод. ст.)
Объем уходящих газов2750 м³/ч
Температура уходящих газов220 °С
ТягаУравновешенная
Водяной объем котла520 л
Объем топочной камеры0.58 м³
Объем бункера0.80 м³
Объем штатного бункера (насыпная плотность 650 кг/м³)520 кг
Размер топочной камеры, длина*ширина*высотаД 900х1410 мм
Присоединительные размеры по водяному тракту65 Ду
Присоединительные размеры газохода уходящих газов, ширина*высота / сечение600х200 / 0.12 мм/м²
Габаритные размеры блока, длина*ширина*высота1850х1400х1700 мм
Габаритные размеры установки, длина*ширина*высота2900х1400х2400
Масса2750 кг
Конструкция котлаВодотрубная
Количество контуровОдноконтурный
РазмещениеНапольный
Тип камеры сгоранияОткрытый
УправлениеЭлектронное
Принцип работы твердотопливного котлаКлассический
ЭнергонезависимыйНет
Тип питанияТрехфазное
Встроенный циркуляционный насосНет
Встроенный расширительный бакНет
ЭнергоэффективностьВысокая
Отапливаемая площадьот 3900 до 5500 м²
Отапливаемый объемот 11500 до 16500 м³
Габаритные размеры котла, длина*ширина*высота мм
Размеры корпуса котла, длина*ширина*высота мм

Котел на пеллетах 500 кВт с автоматической подачей в Айтеке-Би

Промышленный твердотопливный котел на пеллетах 500 кВт предназначен для отопления и горячего водоснабжения жилых и производственных зданий. Обслуживание и работа пеллетного котла не требует больших усилий, все рабочие процессы котлоагрегата автоматизированы. Котел работает на всех видах пеллет, в том числе низкокачественных и агропеллетах. Агрегат считается экологически безопасным, т.к при сжигании топлива не выделяются вредные и токсичные вещества.

Пеллетный теплогенератор нагревает воду до 95 – 115 градусов с давлением теплоносителя 0,1 – 0,3 МПа.

Пеллетный котел 500 кВт устройство

Твердотопливный пеллетный котел 500 кВт водотрубный, напольный состоит из котельного блока с топкой и зольником, конвективного пакета и расходного бункера. Топка оснащается ретортной горелкой, которая устанавливается в центре топочной камеры и крепится к нижней части бункера.

Расположение горелки в центре обеспечивает равномерное нагревание стенок топки, не подвергая их перегреву. При помощи шнека топливо из бункера поступает на чашу реторты, где происходит его горение. Для розжига и обслуживания в топочной части установлена дверка.

Зольный короб находится под ретортой. Сброс шлака и золы производится автоматически. С зольника, при помощи шнека, шлак и зола удаляются в емкость-накопитель. В связи с низкой зольностью топлива чистка котла производится редко.

Бункер для пеллетного котла крепиться к котельному блоку. Герметичный бункер исключает обратную тягу и защищает топливо от возгорания.

Конвективные пакеты друг напротив друга в шахматном порядке располагается над топкой. Такое расположение обеспечивает необходимую площадь нагрева, охлаждение дымовых газов на выходе до 500-180 °С, компактность котла и снижает вероятность забивания конвективной части.

Для предотвращения в трубной системе отложения солей и накипи организована необходимая скорость теплоносителя для создания турбулизации. В коллекторах отопительного пеллетного котла 500 кВт находятся перегородки, которые распределяют поток воды так, чтобы исключить образование застоя, возникновение теплового напряжения и локального перегрева.

Принцип работы котла 500 кВт на пеллетах

При помощи автоматики полностью контролируется работа водотрубного котла 500 кВт на пилетах:

  • производится дозированная подача топлива для поддержания комфортной температуры в помещении;
  • происходит контроль горения;
  • осуществляется подача воздуха, в количестве, необходимом на горение.

Топливо загружается в оперативный бункер, откуда при помощи шнека поступает на чашу реторты. На корпусе шнека расположен термодатчик для контроля температуры. При повышении температуры выше допустимой все топливо сбрасывается в топку, предотвращая возгорание.

Воздух на горение подается в центр и под колосники ретортной горелки, тем самым предотвращая решетку от перегрева.

Удаление шлака в зольник производится свежими порциями топлива, поступающими на реторту. Шнеком из зольного ящика зола и шлак поступают в емкость-накопитель.

Комплект поставки

Цена на напольные пеллетные котлы 500 кВт для отопления включает базовую комплектацию. В состав базовой комплектации входит: вентилятор поддува, ретортная горелка со шнековым питателем, бункер, затворы, предохранительные клапаны, вентили, манометры, термометры, трехходовые краны.

Дополнительная комплектация

  • автоматика – обеспечивает управление и безопасность котла;
  • циркуляционный насос - обеспечивает циркуляцию воды в котлоагрегате;
  • подпиточный насос – позволяет пополнять объем теплоносителя в контуре;
  • дымосос – создает разряжение в котле и исключает попадание дыма в помещение;
  • золоуловитель – применяется для улавливания золы из дымовых газов.

Купить пеллетный котел 500 кВт

Для того, что бы купить котел 500 кВт на пеллетах в Айтеке-Би вы можете сделать заявку по телефону +7-7172-69-59-73, либо оформить заявку онлайн. Менеджеры дадут консультацию по подбору вспомогательного оборудования для выбранных вами моделей и рассчитают стоимость доставки. Транспортирование котлоагрегата и вспомогательного оборудования до объекта осуществляется автомобильным транспортом.

Комплект поставки

Вентилятор
Вентилятор 2 с дв. 1,5/3000
1 штука
Пеллетная ретортная горелка
Горелка ретортная пеллетная
1 штука
Бункер котла на пеллетах автоматического
Бункер автоматического котла на пеллетах
1 штука
Затвор ДУ 65
Затвор Ду 65
2 штуки
Клапан предохранительный Ду 40
Клапан Ду 40
1 штука
Клапан обратный
Клапан обратный
1 штука
Манометр МП 160
Манометр МП 160
2 штуки
Кран трехходовой ДУ 15
Кран Ду 15
2 штуки
Термометр ТТЖО
Термометр ТТЖО
2 штуки
Оправа термометра ОПТ
Оправа ОПТ
2 штуки
Вентиль Ду 15
Вентиль Ду 15
2 штуки
Вентиль Ду 20
Вентиль Ду 20
2 штуки

Дополнительно потребуется

Насос К консольный
К 65-50-160а
Цена 428 350 тг.
Насос К консольный
К 50-32-125
Цена 313 025 тг.
Насос TD
Насос TD32-33G2 (3 кВт)
Цена 931 167 тг.
Насос TD
Насос TD50-28G2 (4 кВт)
Цена 1 117 664 тг.
Насос CHL
Насос CHL2-40 (0.55 кВт)
Цена 330 159 тг.
Контейнер для шлака
Цена по запросу
Дымосос ДН 3.5
Цена 368 381 тг.
Транспортер шлакоудаления
Цена 7 578 500 тг.

Похожая продукция

На опилках котел 500 кВт
Цена 9 898 180 тг.
500 кВт котел на дровах
Цена 3 222 510 тг.
Угольный котел 500 кВт
Цена 2 985 270 тг.
Котел пеллетный 400 кВт
Цена 7 644 400 тг.
Котел пеллетный 600 кВт
Цена 8 764 700 тг.

Сертификаты товара

Сертификат на водогрейные котлы на твердом и жидком топливе
Сертификат на водогрейные котлы на твердом топливе

Собственное производство

Котельный завод производит
  • Паровые котлы от 300 кг до 2.5 тонны пара в час
  • Промышленные водогрейные котлы от 150 КВт до 4 МВт на всех видах топлива
  • Механические топки ТШПМ, шурующая планка и ТЛПХ, ленточное полотно прямого хода
  • Циклоны для очистки воздуха и дымовых газов для производств и промышленных отраслей
  • Транспортеры и системы топливоподачи и шлакоудаления
Подробнее о производстве
Собственное производство
Смотреть видео
с производства